ул. Коммунистическая, 47
tyumen@kotel-kv.ru
8 (800) 551-70-98
Бесплатно по России
Видео
Фото
Чертеж
Уточните ваш запрос, если товар не подходит
Топливо
Паропроизводительность, кг/час

Паровой дизельный котел 1200 кг в час 115 °С 0.07 МПА в Тюмени

Цена парового дизельного котла 1200 кг/ч 115 °С 0.07 МПА в Тюмени 1 380 000 рублей

Цена на паровой дизельный котел 1200 кг в час 115 °С 0.07 МПА с доставкой от 1 380 000 рублей с НДС
Условия поставки:
В наличии на складе
ТК по России и Казахстану
Безналичный расчет
Этот товар вы можете купить в лизинг

Паровой жаротрубный котел

Работает с различными импортными горелками

Удобно размещается в маленьких котельных

Плавная выработка пара даже при подпитке холодной водой, без температурных колебаний

Дымосос не требуется даже при плюсовых температурах, котел работает на самотяге

С котлом поставляется полный комплект запорной арматуры и КИП

Для очистки поверхностей нагрева от сажи остановка котла не требуется

Температура пара до 115 °С, не требует регистрации в Ростехнадзоре

Технические характеристики
Комплект поставки
Дополнительно потребуются
Отзывы
Тип котла Жаротрубный Полный объем котла, м³ 3.65
Паропроизводительность, кг/час 1200 Объем паровой части, м³ 0.34
Производительность, т/ч 1.2 Аэродинамическое сопротивление, Па (мм. вод. ст.) 23
Тепловая мощность, кВт 900 Тяга Принудительная
Диапазон регулирования теплопроизводительности, % 40-100 Объем топочной камеры, м³ 2.13
Топливо Дизель Размер топочной камеры, диаметр*глубина, мм 1195*1900
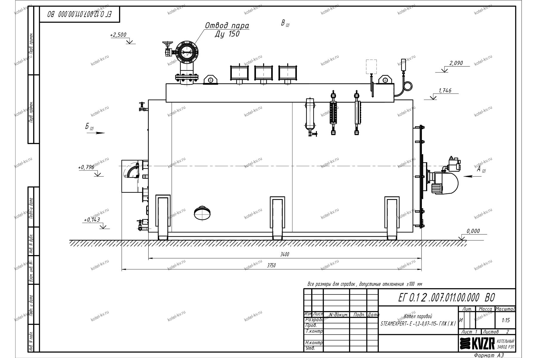
Низшая теплота сгорания топлива ДИЗЕЛЬ, кКал/кг 12000 Присоединительные размеры выхода пара, Ду 150
КПД (ДИЗЕЛЬ), не менее, % 90 Присоединительные размеры по водяному тракту, Ду 32
Расход топлива при максимальной нагрузке котла (ДИЗЕЛЬ), кг/ч 82 Присоединительные размеры по дымовым газам / диаметр дымовой трубы, мм 400
Расход условного топлива, кг/ч 141 Габаритные размеры, длина*ширина*высота, мм 3750*1800*2100
Температура пара, °C 95, 110, 115 Масса, кг 3250
Избыточное давление пара, не более, МПа 0.07 Марка котла STEAMEXPERT
Избыточное давление пара, не более, кгс/см² 0.7 Энергоэффективность Высокая
Избыточное давление пара, не более, бар 0.7 Бренд STEAMEXPERT

Это устройство работает со вспомогательным оборудованием, которое приобретается отдельно. Если вы хотите сразу узнать стоимость всей установки, добавьте заинтересовавшие вас позиции в корзину. Чтобы точно расчитать стоимость доставки до вашего объекта, укажите его адрес в корзине и оправьте нам заявку. Обычно мы отвечаем в течение дня.

Щит управления КПа Щит управления КПа
Тип управляемого оборудования
Паровой котел КПа
167 000
Насос CDL Насос CDM 3-3 (0.37 кВт)
Цена скоро
появится
Водоподготовка парового котла Водоподготовка парового котла
Цена скоро
появится
Горелка СибСтронг дизельная Горелка дизельная СибСтронг IL-7L2
Топливо
Дизель
Мощность горелки, КВт
600-1800
Цена скоро
появится
Газоход котла Газоход котла
Цена скоро
появится
Горелка дизельная Emma Горелка дизельная Emma 1.4
Топливо
Дизель
463 000
Об этом товаре еще нет отзывов. Будьте первым!
Оставьте ваш отзыв
Котел паровой КПа 1200 ЛЖ
Паровой котел КПа 1200 ЛЖ дизельный
Изготовление парового котла КПа 1200 ЛЖ
Производство парового котла КПа 1200 ЛЖ

Паровой котел КПа 1200 ЛЖ

Паровой дизельный котел КПа 1200 ЛЖ

Паровой котел КПа 1200 ЛЖ изготовление

Паровой котел КПа 1200 ЛЖ производство

Паровой котел КПа 1200 кг пара в час на 115 °С 0.07 МПА/0.7 кгс/см2/ 0.7 бар на дизеле в Тюмени

Отличительные особенности парового дизельного котла STEAMEXPERT КПа 1200-0.07-115

    • Повышенная надежность конструкции благодаря отсутствию неравномерных температурных расширений в жаровой трубе и трубной части теплообменника
    • Стабильная непрерывная выработка пара требуемых параметров при любой нагрузке благодаря большой паросборной камере - до 15 % от общего парового объема
    • Отсутствие капель воды в паре благодаря большой поверхности испарения и наличию сепаратора пара
    • Высокая скорость образования пара благодаря эффективной трубной системе котла
    • Возможность подпитки котла холодной водой +5 °С благодаря большому водяному объему и отсутствию температурных колебаний в трубной системе, работа парогенератора без экономайзера и подогревателя питательной воды
    • Эффективная и простая очистка от выпадающего в процессе работы шлама без остановки парообразования

Устройство и описание

Устройство моделей STEAMEXPERT отличается от дизельных паровых котлов 1200 кг пара других производителей – КП-1200 ЛЖ, КПа-1200 ЛЖ, КПо-1200 ЛЖ, Орлик, ПАР-1,2-0,07, Орел.

Паровой котел STEAMEXPERT 1200 - 0,07-115 на дизеле – горизонтальный, прямоточный, жаротрубный, состоит из двух жаровых труб. Пространство между обечайками заполняется водой, сверху устанавливается паросборник с сепаратором, в котором собирается образующийся пар. Для получения высокого КПД котла в хвостовой части жаровой трубы устанавливаются конвективные трубы. Снаружи конвективные трубы омываются горячими газами, внутри по ним движется и нагревается вода.

Колосниковая топка твердотопливного парового котла Колосниковая топка твердотопливного парового котла В передней части котла устанавливается горелочное устройство. Горелка может быть различных отечественных и импортных производителей. Газы выходят из топки в верхней части и через системы газоходов поступают в дымовую трубу.

Подача питательной воды производится питательным насосом. В соответствии с ГОСТ для паровых котлов должно быть установлено два насоса, рабочий и резервный.

В котле предусмотрена система дренирования котла от шлама, позволяющая собирать и удалять шлам со всей внутренней поверхности котла без остановки работы. Для очистки парогенератора от сажи предусмотрена встроенная система очистки паром. Чистые поверхности нагрева сохраняют высокое КПД и энергоэффективность работы дизельного парового котла КПа-1,2 т -0,07-115 °С на протяжении всего производственного цикла парообразования.

На паросборник устанавливаются 2 предохранительных клапана

Принцип работы парового котла 1.2 т, 0.7 кгс/см2(бар) 115 °С на жидком топливе

Газообразное топливо сгорает в топке. Горячие газы омывают трубную систему, нагревают воду и производят насыщенный температурой до 115 градусов. При необходимости парогенератор может производить пар меньшей температуры – 95 градусов.

Паровой котел КП 1.2-0.07 МПа жидкотопливный должен быть укомплектован автоматикой. Автоматика ограничивает предельно допустимые параметры работы и давление пара, управляет вентилятором и подпиточным насосом и регулирует уровень воды в барабане. Температура сухого насыщенного пара регулируется изменением давления пара, при необходимости снижения температуры необходимо выставить соответствующее давление пара на электроконтактный манометре. Автоматика котла по заданному давлению производит управление горелкой и, следовательно, интенсивностью горения.

Питательная вода для парогенераторов подготавливается в соответствии с требованиями руководства по эксплуатации, «Правилам технической эксплуатации тепловых энергоустановок» и ГОСТ Р 51232-98. Для подбора водоподготовительной установки требуется провести химический анализ воды.

Подключение парового котла 1200 кг с температурой 115 °С давлением 0.07 МПа на жидком топливе

Подключение и монтаж производятся по проекту, выполняемому специализированной организацией.

Схема подключения парового котла на угле Схема подключения парового котла на угле Один из вариантов схемы подключения котла КПа приведен на схеме.

На сайте нашего завода вы можете купить все необходимое вспомогательное оборудование для подключения жидкотопливного парового котла 1200 кг 115°С 0.07 МПа, а также заказать схему подключения в Тюмени.

Безопасность работы

Безопасная эксплуатация обеспечивается выполнением требований

      • Инструкции по эксплуатации
      • Правил устройства и безопасной эксплуатации паровых котлов с давлением пара не более 0.07 Мпа (0.7 кгс/см2)
      • Правил технической эксплуатации тепловых энергоустановок

Требования к помещениям котельной регламентируются СП 89.13331.2016 «Котельные установки»

Дизельный паровой котел КП 1.2-0.07–115 °С должен управляться автоматикой безопасности, имеющей сертификат соответствия.

Одним из самых важных устройств, обеспечивающих безопасную эксплуатацию котла, является предохранительный клапан парового котла. Он обеспечивает сброс пара при превышении давления в котле свыше допустимого и предохраняет установку от разрушения. Необходимые условия монтажа и эксплуатации подробно представлены в паспорте и руководстве по эксплуатации.

Подобрать требуемую мощность парового котла для вашего предприятия вы можете по ссылке.

Комплект поставки парообразователя нашего производства

Схема подключения арматуры парового котла Схема подключения арматуры парового котла

      • Котельный блок - 1 шт
      • Предохранительный клапан парового котла - 2 шт
      • Вентилятор - 1 шт
      • Вентили - комплект
      • Указатель уровня - 2 шт
      • Запорное устройство указателя уровня 2 шт
      • Клапан обратный - 1 шт
      • Кран трехходовой под манометр- 2 шт
      • Манометр - 2 шт

Дополнительно для подключения вам потребуются

      • Горелка
      • Питательный насос – 2 шт (рабочий и резервный)
      • Автоматика управления - 1 шт
      • Водоподготовка (подбирается на основании химического анализа воды)
    • Труба дымовая - 1 шт
    • Газоходы - комплект

Гарантии изготовителя

Гарантийный срок - 24 месяца со дня ввода в эксплуатацию.

Гарантийное обслуживание включает в себя бесплатное устранение скрытых заводских дефектов, замену деталей и узлов вышедших из строя в период гарантийного срока при условии монтажа и эксплуатации оборудования Покупателем в соответствии с его назначением, технической документацией, техническими нормами, правилами ввода в эксплуатацию и эксплуатации данного оборудования.

Срок эксплуатации парового котла 10 лет.

Описание товара

    Купить паровой котел на дизельном топливе 1,2 т/ч 115 °с 0.7 бар в Тюмени

    Для получения консультации укажите номер вашего телефона
    Смотреь обзор на

    Паровой котел КПа 1200 (производительность 1200 кг пара в час, максимальная температура пара 115 С°, давление пара 0.07 МПа (0.7 кгс/см²), тепловая мощность 0.9 МВт (900 КВт), топливо - дизель). Применяется для технологических целей в производстве.

    Патенты на котельное оборудование

    Патенты

    Смотреть все патенты
    Сертификаты Завода

    Сертификаты

    Смотреть все сертификаты
    Членство в СРО

    Допуски

    Смотреть все допуски
    Отзывы о продукции котельного завода

    Отзывы о продукции котельного завода

    Смотреть все письма
    Аттестованная технология сварки

    Аттестованная технология сварки

    Смотреть все аттестаты
    Цена с НДС
    1 380 000
    Смотреть
    комплект